18117547086
021-52807152










项目成果:江苏中新棠医疗无尘GMP净化车间装修设计工程,由SAREN三仁(上海西递实业有限公司)总承包承建,从平面设计,到工程施工、仪器设备采购安装、水电气路、消防、暖通等系统工程的设计装修,均由SAREN三仁上海事业部统一完成,在良好的内部配合与外部沟通下,目前已全部完工,得到了中新棠国业(苏州)医疗科技有限公司、太仓物业管理部、SAREN合作伙伴等多方好评。
项目地点:江苏 太仓
项目面积:3000m²
签约时间:2019/05/31
SAREN三仁净化工程EPC项目: 江苏中新棠医疗无尘GMP净化车间装修案例,3000㎡洁净设计装修施工,系统工程一站式服务总承包.欢迎咨询:400-007-8218
实验室洁净室规划设计
实验室洁净室装修施工
洁净工程EPC总承包
咨询电话:18117547086
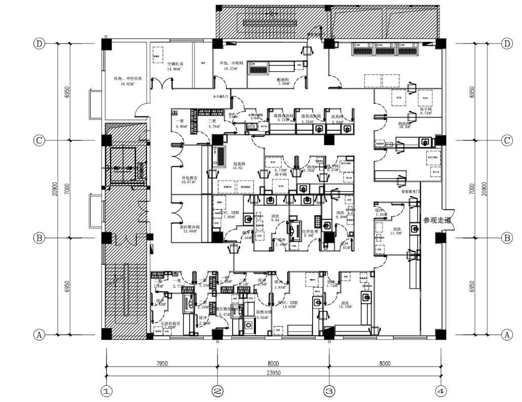
2019年5月31日,SAREN三仁与中新棠国业(苏州)医疗科技有限公司顺利签约,并着手工地施工系列准备工作。截止6月13日已完成工地各项保护及安全措施施工。本次项目的建设重点将在GMP净化无尘车间建设。采取有效措施合理布置人流物流走向及配套功能间,防止交叉污染,同时考虑企业未来发展需求。
中新棠国业(苏州)科技有限公司室专门从事生物医用材料尤其是口腔医用材料及相关器械的研发、生产与经营的专业公司,拥有由英国谢菲尔德大学(The University of Sheffield)、北京大学、哈尔滨工业大学及有关科研院所组成的专业齿科材料研发团队。注:案例图片仅供三仁内部使用,禁止盗图。
工程地址:江苏太仓市银港路51号中新棠国业
施工范围:工程设计、装饰工程、水电安装工程、净化暖通系统工程等。
施工工期:2019年7月1日——2020年1月10日(净化验收预计)。
安全时间:施工遵守安全施工规范无安全施工发生。
施工项目负责人:马经理
SAREN中新棠医疗无尘车间工程案例展示:
SAREN医疗医药无尘车间相关文章推荐:
3. 医院输血科实验室建设方案 、设计布局、管理。输血科净化装修施工
SAREN医疗医药净化车间装修洁净设计施工案例:

